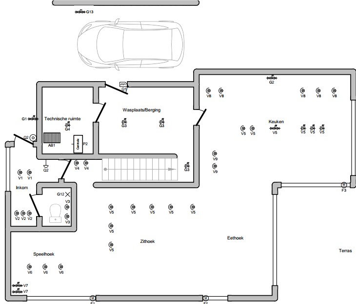
Technische keuring
Het hebben van duidelijke elektrische schema's is essentieel voor een correcte keuring van je installatie. De keuring is noodzakelijk voor nieuwe, aangepaste en verouderde installaties. Daarnaast zijn schema's ook handig voor toekomstig onderhoud en aanpassingen aan de installatie.


Contact
DM Electro Solutions
© 2025. All rights reserved.
Zonderschotsesteenweg 98
2220 Heist-op-den-Berg
BE1018 600 760
